Детский игровой комплекс Домик приключений 4

Цена
776 880 

Характеристики

Характеристики
  • Страна производства: Россия
  • Код изделия: Н145281
  • Серия: Домик приключений
  • Масса: 1560 кг
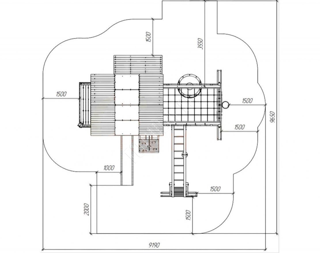
  • Высота, см: 374 см
  • Ширина, см: 587 см
  • Длина (глубина), см: 619 см
  • Материал: дерево
  • Цвет: разные цвета
  • Размещение: на улице
  • Особенности комплектации: верёвочная лестница, канат, гимнастические кольца, качели, рукоход, гладиаторская сетка, баскетбольное кольцо, песочница, горка, скалодром, счеты, лестница, груша, игровая башня, столик с лавочками, с домиком
  • Возрастная группа: 4-6, 7-10, 11-14
  • Способ установки: на анкера (в комплект не входят)
  • Длина ската: 300 см
  • Материал ската: пластик
  • Категория:  Деревянные, Для дачи, С горкой, С горкой и качелями, С домиком, Крытые, Деревянные, Детские площадки, Из бруса

Описание

Цвет комплектующих может отличаться, отгружается из наличия на складе.

Для установки данной площадки рекомендуется закрепить её анкерами. Анкера в комплект не входят, приобретаются дополнительно.

Все игровые материалы, представленные на визуализации в зонах «Магазин» и «Песочница» представлены в виде примера и не входят в комплектацию.

Этот комплекс сочетает в себе игровую и спортивную площадку, а также уютный детский домик с просторным игровым пространством. Он открывает двери в мир сказочных приключений для детей разного возраста (от 3 до 16 лет), развивая их физические способности и воображение.

Игровые зоны комплекса способствуют развитию и обучению, включая подготовку к школе. Родители могут продуктивно проводить время с детьми, чередуя обучающие и спортивные игры на свежем воздухе.

Игровые зоны в детской площадке PlayHouse 4:

  • Зона «Магазин» - для сюжетно-ролевых игр с дидактическим материалом, таким как имитация овощей, фруктов и детская посуда.
  • Зона «Песочница» - пространство для тематических игр с песком.
  • Зона «Башня» - идеальна для игр в пиратов и захватывающих спусков с горки.
  • Зона «Спортивная» - для активных спортивных занятий.
  • Зона «Панда Парк» - лазательные сетки для взрослых детей, включая вертикальные и горизонтальную сетку на высоте 2,3 метра.
  • Зона «Релакс» - для отдыха и чтения книг или игр «Дочки-матери».
  • Зона «Павильон» - увеличенная внутренняя площадь для комфортной игры нескольких детей одновременно.

Характеристики:

  • Длина, мм: 6185 
  • Ширина, мм: 5870 
  • Высота, мм: 3735 
  • Вес, кг: 1560
  • Возрастная группа, лет: от 3 до 16 
  • Качество древесины согласно ГОСТ: 8486-86
  • Обработка дерева - Лакокрасочным покрытием с разрешающим сертификатом для покрытия детских игровых площадок
  • Силовые детали: брус 45х90 мм
  • Элементы подвеса согласно ГОСТ: Тип «Д+», оцинкованные, с фиксирующими «зубчиками», нагрузка до 300 кг.

Комплектация:

  1. Многофункциональный домик широкого назначения со спортивно-игровыми функциями – 1 шт.
  2. Игровая башня – 1 шт.
  3. Лавочка на башне – 1 шт.
  4. Гирлянда 3 м – 1 шт.
  5. Скалодром комбинированный – 1 шт.
  6. Пластиковые зацепы – 5 шт.
  7. Канат для скалодрома – 1 шт.
  8. Мягкие накладки – 2 шт.
  9. Кольца-счёты – 24 шт.
  10. Лестница с деревянными ступенями и поручнями – 1 шт.
  11. Рукоход – 1 шт.
  12. Ящик игровой – 2 шт.
  13. Козырёк – 1 шт.
  14. Дверка открывающаяся – 1 шт.
  15. Песочница – 1 шт.
  16. Лавочка на песочницу малая – 1 шт.
  17. Лавочка на песочницу большая – 1 шт.
  18. Столик-прилавок – 1 шт.
  19. Горка 3,0 м – 1 шт.
  20. Платформа для спуска с горки – 1 шт.
  21. Качельный блок «Куб» – 1 шт.
  22. Меловая доска (810х390 мм) – 1 шт.
  23. Бинокль – 1 шт.
  24. Флажная лента – 1 шт.
  25. Гимнастические кольца – 1 шт.
  26. Верёвочная лестница – 1 шт.
  27. Боксёрская груша – 1 шт.
  28. Сетка-лазалка вертикальная – 1 шт.
  29. Сетка-лазалка горизонтальная «Панда Парк» – 1 шт.
  30. Баскетбольный щит «Profi» – 1 шт.
  31. Подвесное кресло «Papa-sav» – 1 шт.
  32. Диван «Релакс» – 1 шт
  33. Шторы с подхватами (комплект из 2-х шт.) – 1 шт.
  34. Тюль (комплект их 2-х шт.) – 1 шт.
  35. Подушки из Рогожки (комплект из 2-х шт. – 1 шт.
  36. Панорамная крыша – 1 шт.
  37. Крестики-нолики – 1 шт.
  38. Игровой Павильон с крышей – 1 шт.
  39. Инструкция – 1 шт.

Адрес пункта выдачи в Нижнем Тагиле: ул Индустриальная, дом 47.

Самовывоз в Нижнем Тагиле
По адресу: Нижний Тагил улица Красноармейская 198А

Доставка без выгрузки по Нижнему Тагилу 2 000 

Установка 155 380 

Серов, Краснотурьинск, Лесной, Верхняя Салда, Качканар, Алапаевск, Кушва, Карпинск, Североуральск, Невьянск, Красноуральск, Нижняя Тура, Кировград, Нижняя Салда, Ивдель

По QR коду

Банковской картой на сайте

Рассрочка -- от Тинькофф

Безналичный платеж для юр.лиц

ВозвратВ течение 14 дней

Гарантия 12 месяцев

Также дополнительно заказывают
Продукция серии Домик приключений
Похожие изделия